🤝🏼 В Русской Европе инфраструктура постоянно развивается
🙌🏼 В нашем жилом комплексе проведена работа по улучшению транспортной организации у поликлиники и въезда в паркинг!
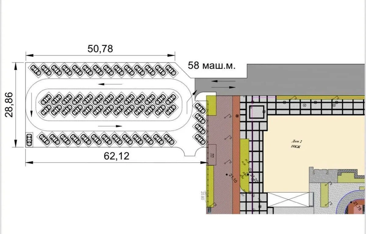
✅ Что уже сделано:
– Застройщик подготовил и реализует временную парковочную зону на 58 машиномест, что заметно снижает нагрузку на подъезды к дому.
– Ведётся активная согласованная работа с городской администрацией по дальнейшему благоустройству и совершенствованию транспортной схемы района.
🤝🏼 В Русской Европе инфраструктура постоянно развивается. Жители и будущие собственники могут быть уверены в комфорте проживания.
✅ Что уже сделано:
– Застройщик подготовил и реализует временную парковочную зону на 58 машиномест, что заметно снижает нагрузку на подъезды к дому.
– Ведётся активная согласованная работа с городской администрацией по дальнейшему благоустройству и совершенствованию транспортной схемы района.
🤝🏼 В Русской Европе инфраструктура постоянно развивается. Жители и будущие собственники могут быть уверены в комфорте проживания.
Опубликовано:
18.12.2025, 14:53